11.11.2025
Новости компаний, пресс- и пост-релизы
17.10.2025
Новости компаний, пресс- и пост-релизы
17.10.2025
Новости компаний, пресс- и пост-релизы
17.10.2025
Материалы и оборудование
Доска объявлений » Коммерческая недвижимость »

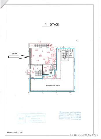
Аренда торговой площади 83 кв.м, с отдельным входом в Строгино

  • Поднять
  • Выделить
  • Закрепить
  • Пожаловаться
  • Тип сделки: сдам
  • Назначение: торгово-сервисные помещения

Аренда помещения 83 кв.м в Строгино, в отдельно-стоящем 2-х этажном торговом комплексе шаговой доступности. Здание расположено в жилой застройке, рядом с культурно-досуговым центром. Первый этаж, большие витринные окна по фасаду. Помещение представлено отдельным блоком. Два входа, зал 65 кв.м, закрытый склад 9м2, мокрые точки, с/узел. Выделенная мощность 70кВт. Помещение после Домино Пицца. В торговом центре расположены: пиццерия "Папа Джонс", салон красоты, ломбард, СК "Ресо Гарантия", медицинский центр, швейный дом, кальянная. 350т.р. в месяц.

Телефон: +7 (926) 377-60-08

Контактное лицо: Сергей

Поделись с друзьями
Или войти с помощью: