Проектная группа «ЛИДЕР» — команда профессионалов, предлагающая услуги в области проектирования, обследования и энергоаудита зданий и сооружений. ПГ «ЛИДЕР» работает как с коммерческими организациями, так и с государственными и муниципальными заказчиками. За последние десять лет группой реализовано более семидесяти проектов разного уровня сложности - от инженерно-геодезических изысканий на земельных участках и обследования технического состояния зданий до разработки строительной документации "под ключ".
Проектная группа «ЛИДЕР» предлагает следующие услуги (список неполный):
- Техническое обследование зданий и сооружений;
- Проведение энергоаудита зданий (подробнее о данной услуге на официальном сайте pg-lider.ru);
- Комплексные инженерные изыскания на строительных участках;
- Услуги архитектурно-строительного проектирования на разных стадиях;
- Проведение авторского надзора за строительными работами;
- Оказание помощи при прохождении экспертизы проектно-сметной документации, получения разрешения на строительство или реконструкцию, ввода объекта в эксплуатацию, а также многие другие услуги в сфере строительства.
Одно из направлений работы проектной группы «ЛИДЕР» является оказание услуг по проведению энергоаудита как отдельных объектов недвижимости, так и комплексно для предприятий. Под энергоаудитом в данном случае понимается совокупность мероприятий, необходимых для выявления проблем энергообеспечения и далее разработка эффективных мер по устранению найденных недостатков. В случае успеха применение предложенных решений позволяет значительно сократить расходы предприятия.
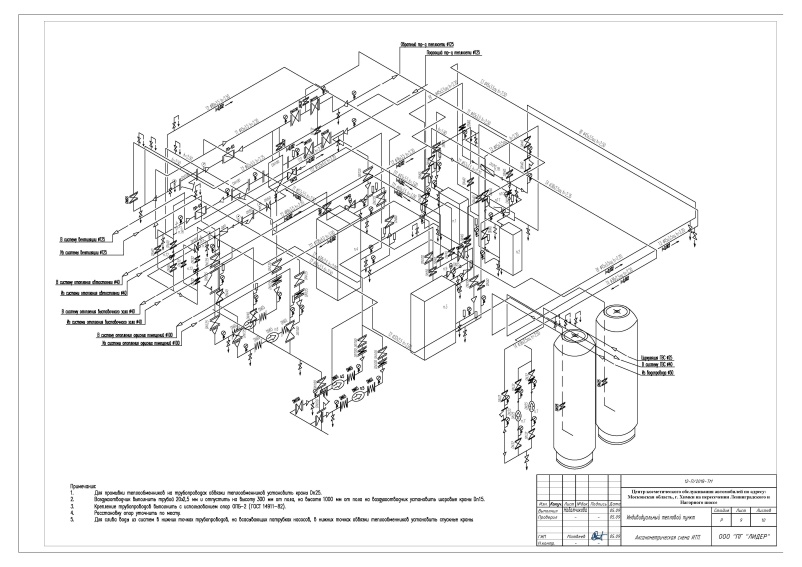
Из портфолио компании ООО «ПГ «ЛИДЕР»: разработка проекта ИТП для многофункционального комплекса, расположенного в г. Химки, Московской области, источник: pg-lider.ru


Проектная группа «ЛИДЕР» обладает всеми необходимыми сертификатами, разрешениями и лицензиями на оказание соответствующих ее профилю услуг, включая работу с объектами культурного наследия или опасными производственными объектами. Группа располагает также экспертами в области контрактной системы закупок, сертифицированных в соответствии с ФЗ № 44-ФЗ, 223-ФЗ, 135-ФЗ. ПГ «ЛИДЕР» также является членом ряда профильных СМО, что также подтверждает высокий профессиональный статус данной организации.
Главный офис ПГ «ЛИДЕР» расположен в Москве по адресу ул. Волочаевская, д. 17А, пом. 1. Более подробно с деятельностью группы можно познакомиться на ее официальном сайте pg-lider.ru.
